2月に読む雪の本
山之内裕一・山之内建築研究所
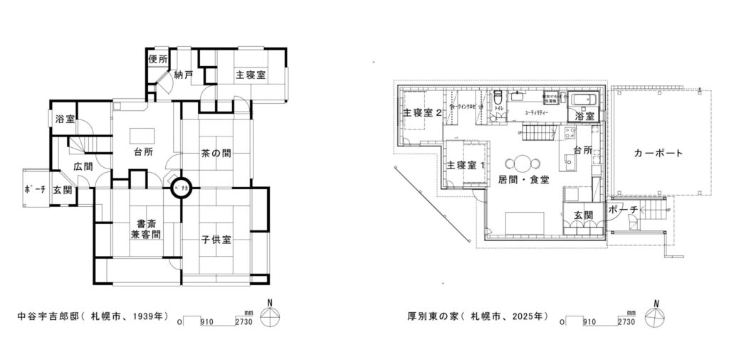
私が暮らす北海道の冬は、雪が大地を純白に彩り美しい光景を見せてくれる季節です。いつの頃からか私は、伊藤整の詩集「雪明かりの路」と中谷宇吉郎のエッセイ「雪」を本棚から手に取り、寒さ厳しい風土に身を置きながら生まれた表現に触れるようになった。調べると、雪研究で高名な中谷宇吉郎博士は、1939年に札幌市内に自邸を建てている。外観は三角屋根で外壁はモルタル仕上だという。しかし断熱材などない時代、木造住宅の外壁だから、室内は決して暖かくはなかっただろう。札幌の2月は極寒地だ。さらに平面図も出てきたので、私は簡略図面に整え直し読み込むことにした。平面計画は田の字プランで廊下が無く、中央部に当時流行したレンガ造のペチカ暖房を設置している。主要室の床はタタミ敷で、米国からの帰国直後にもかかわらず和風なのは、学生たちが寝泊まり可能な床座の合理性を優先したという。その合理精神は台所のアイランドキッチンに反映され、87年前とは思えない新しさに驚くのです。そこで、私が設計した「厚別東の家」との比較を試みた。同じ縮尺で並べてみると、さまざまなことが読み取れて興味深い。「厚別東の家」は、通りや広場のような役割をもつ中央室を中心に計画された住宅(本コラム「住宅の通り・広場」2025年10月20日号)。いわば合理性を追求した平面は、ハイサイドライト採光と床下暖房設備、そして高い断熱気密性能が大きな役割を果たした。そのため、そうした技術的諸条件が用意される時代まで実現できなかったと考えています。そしてもうひとり伊藤整は最晩年、私が高校生時代に講話を聴いているのですが、その内容は残念ながら記憶にない。また東京の自邸「伊藤整の住宅」はブロック造で、2020年登録有形文化財となっています。

正面外観 
中央室見下ろし 
中央室見上げ 
比較平面図(1939,2025)
詳細情報
作品名:厚別東の家
所 在:北海道札幌市厚別区
構造・規模:補強コンクリートブロック造一部木造、2階建
敷地面積:81.27㎡
延床面積:110.91㎡
設計監理:山之内建築研究所/山之内裕一
施 工:株式会社松浦建設
ブロック施工:よねざわ工業株式会社
竣 工:2025年4月
撮 影:酒井広司/グレイトーンフォトグラフィクス


