再録・セラミックブロックの家
山之内裕一・山之内建築研究所
10年ほど前、拙作「岩見沢の家」を題材にセラミックブロックについて書きました。北海道には明治期のレンガと同じ粘土を厚150×長320×高154に素焼焼成した建築建材セラミックブロックがあります。掲載当時(2015年8月24日号)主要メーカー・北海道農材工業は建材部門を閉鎖し、セラミックブロック供給を止めていました。その後、建材部門が再開されることなく現在に至っています。たまたま先日、当時の関係者から話を聴く機会がありましたので、設計者・建築家目線からセラミックブロック住宅を再考したいと思います。 北海道では1970年代からの30年間、最もセラミックブロック住宅を建築家が設計した時期です。建築家は、明治期の歴史的建造物に用いられたレンガ同様に、素材の色と質感がセラミックブロック最大の魅力と考えました。工学的には、コンクリートブロック同様のメーソンリー構造(組積造)です。しかしコンクリートブロックとの違いは、優れたデザイン性と維持管理しやすい耐久性です。白い雪の冬にも自然の緑の夏にも、映える。だからなるべく外壁に用いたい。レンガ同様、厳しい北国の風雪に強いセラミックブロックは外壁に使用し、断熱は内側に施すのが最適解。当時、先見的な建築家は蓄熱性の優れた外断熱を目標に掲げていましたので、目標と実践との衝突に悩み、上手く乗り切る方法が見つかりませんでした。私が設計した「岩見沢の家」は外断熱ですが、外壁にセラミックブロックが現れるのは玄関ポーチ部分のみです。それは外断熱による温熱環境を最優先したためですが、セラミックブロックを外観で生かしきれなかったという思いは今も残っています。

外観1 
外観2 
上棟時 1階はRC+セラミックブロック、
2階は木造の混構造
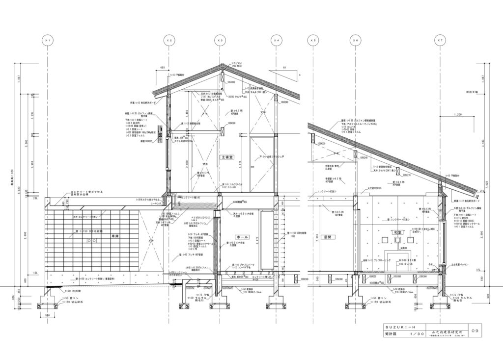
図面
詳細情報
作品名:岩見沢の家
所 在:北海道岩見沢市
構造・規模:木造一部RC造、2階建
敷地面積:337.88㎡
延床面積:15,594㎡
設計監理:山之内建築研究所/山之内裕一
施 工:セラミックアーバン株式会社
ブロック施工:よねざわ工業株式会社
竣 工:2002年



